Apartament penthouse cu 4 camere| ultra-finisat | zona premium


  • 4 Camere
  • 4 Bai
  • 214 mp construiti
Descriere

Amplasat pe o strada linistita in zona Primaverii, la mica distanta de mers pe jos de metrou, foarte aproape de Parcul Herastrau, acest penthouse cu 4 camere se afla la etajul 4 al unui imobil S+P+4 finalizat in 2024.
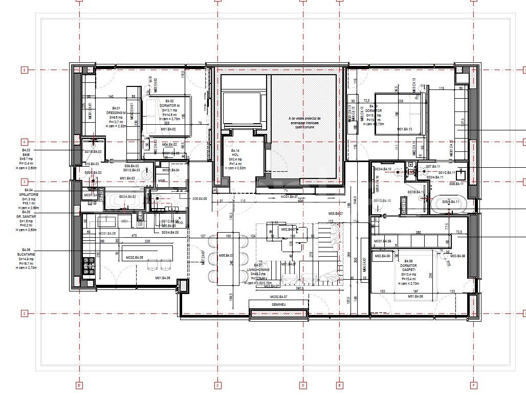
Are o suprafata construita de 214 mp dintre care 149mp utili si 65mp terasa.
Este compus din living luminos cu zona de dining, bucatarie complet echipata si mobilata, grup sanitar, spalatorie, dormitor matrimonial cu baie proprie si dressing, 2 dormitoare secundare cu baie secundare si dressing. Toate camerele au iesire pe terasa.
Dispune de 2 locuri de parcare subterane si este complet mobilat.
Avand in vedere locatia si facilitatile oferite, este ideal pentru rezidenta.

Floor Plans
€ 6.500+TVA/luna
  • 2387428, Primaverii

    Apartament penthouse cu 4 camere| ultra-finisat | zona premium

Similar Properties


€ 3500/luna+TVA
  • 2 Camere
  • 1 Bai
  • 0 mp

Amplasat in zona Primaverii, pe o straduta linistita, acest apartament cu 2 camere se afla la Demisolul unui imobil S+D+P+4 finalizat in 2024. Are o suprafata construita de 170mp dintre care 102mp... Citeste mai mult

€ 1.345.000
VIDEO
  • 3 Camere
  • 3 Bai
  • 231 mp

Amplasat in cea mai exclusivista zona a orasului, acest apartament modern cu 3 camere si gradina proprie este la parterul inalt al unui imobil impecabil din 2009, S+P+6. Vederea este deschisa catre... Citeste mai mult

€ 16000/luna
  • 0 Camere
  • 9 Bai
  • 0 mp

Amplasat in zona Primaverii, cu acces rapid catre metrou, acest imobil S+P+5 are o suprafata construita de 1260mp din care 1050mp utili. Ofera spatii de birouri moderne, cu lumina naturala. Include... Citeste mai mult